CASTEL GOFFREDO ZONA CENTRALE
€ 320.000 TRATTABILI





























































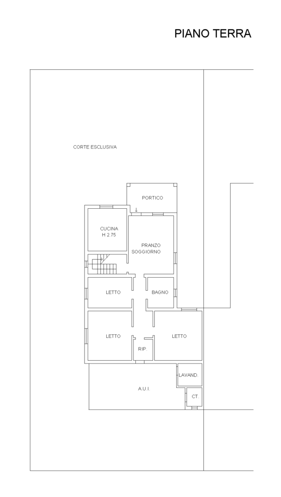
IN QUARTIERE RESIDENZIALE BEN ABITATO, VILLA BIFAMILIARE COSTRUITA NEL ANNI ’90, COMPLETAMENTE INDIPENDENTE, CONFINANTE SOLO CON UNA STANZA E DISPOSTA SU PIANO UNICO OLTRE ALLA MANSARDA AL PRIMO PIANO. LA VILLA E’ COMPOSTA DA: PIANO TERRA, AMPIO GIARDINO SU TRE LATI CON INGRESSO CARRAIO E PEDONALE INDIPENDENTI, SOGGIORNO CON CUCINA SEPARATA E ABITABILE, REPARTO NOTTE, TRE CAMERE DA LETTO DI CUI DUE MATRIMONIALI E UNA SINGOLA, BAGNO E RIPOSTIGLIO OLTRE ALL’ACCESSO DIRETTO AL BOX AUTO CON LOCALE TECNICO/CALDAIA E LAVANDERIA. AL PIANO PRIMO SOTTOTETTO SFRUTTABILE DIVISO IN TRE STANZE OLTRE AD UN BAGNO. IMMOBILE BEN TENUTO, DISPONIBILE DA SUBITO CON BASCULANTE ELETTRICA, ASPIRAZIONE CENTRALIZZATA, ADDOLCITORE, ARIA CONDIZIONATA E ALLARME. OTTIMA SOLUZIONE PER CHI CERCA UNA CASA COMODA ED INDIPENDENTE. AFFARE!!!
C.E. F IPE 262,81 KWH/MQA
| Riferimento | EK-123147919 |
|---|---|
| Superficie | 230 m² |
| Locali | 4 (soggiorno + 3 altri) cucina abitabile, 2 bagni |
| Box e posto auto | Garage singolo |
| Piano | Terra e primo |
| Disponibilità | Disponibile da subito |
| Tipo proprietà | Intera proprietà, classe immobile media |
| Informazioni catastali | Categoria A/2 |
| Anno di costruzione | 1990 |
| Stato | Buono/Abitabile |
| Riscaldamento | Autonomo, a radiatori, alimentato a metano |
| Condizionatore | Autonomo, freddo |
| Classe energetica | F |
| Indice di prestazione energetica globale | 262,81 Kwh/mqa |
| Spese condominiali | € 0/mese |
