MONTICHIARI FRAZIONE S. GIUSTINA
€ 320.000 TRATTABILI









































































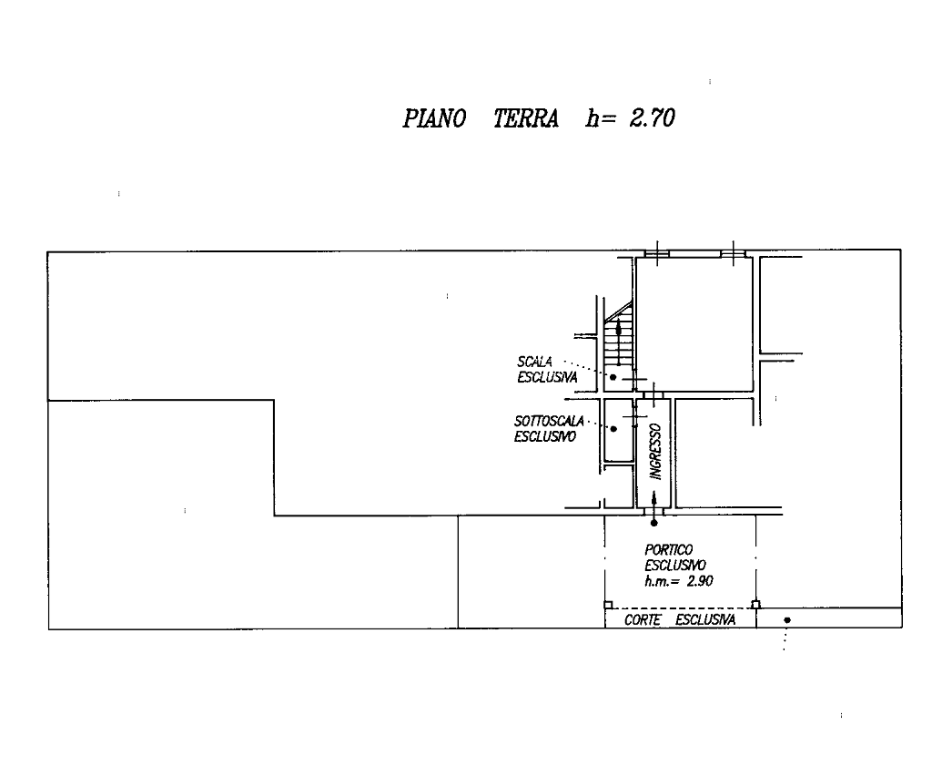
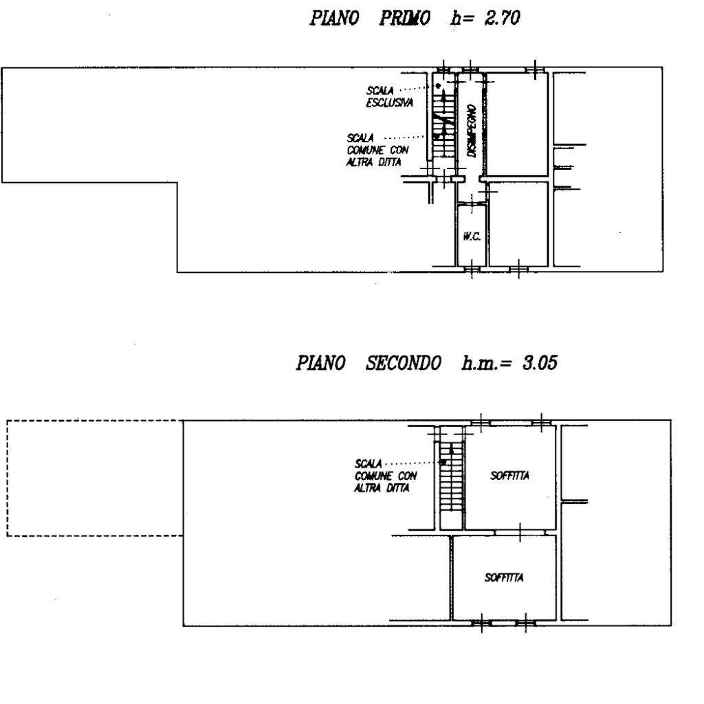
PORZIONE DI CASCINA INDIPENDENTE DI TESTA, LIBERA SU TRE LATI, COMPOSTA DA DUE CASE INDIPENDENTI SU UN LOTTO DI CIRCA 1.500 MQ. LA PRIMA ABITAZIONE, CHE E’ STATA RISTRUTTURARATA PARZIALMENTE E’ COMPOSTA DA: INGRESSO, SOGGIORNO CON CUCINA A VISTA ABITABILE, UNA CAMERA E LAVANDERIA AL PIANO TERRA, AL PRIMO PIANO DUE CAMERE DA LETTO E BAGNO OLTRE A DUE SOFFITTE ALTE RECUPERABILE AL SECONDO PIANO. LA SECONDA UNITA’ E’ DA RISTRUTTURARE PARZIALMENTE ED E’ COMPOSTA DA SOGGIORNO CON CUCINA AL PIANO TERRA, DUE CAMERE E BAGNO AL PRIMO PIANO E DUE MANSARDE AL SECONDO PIANO. ANNESSE ALLA CASCINA DUE AMPIE AUTORIMESSE, UN PORTICATO ALTO AD USO MAGAZZINO E UNA TETTOIA SUL RETRO AD USO RICOVERO ATTREZZI.
IMMOBILE TOTALMENTE INDIPENDENTE E DISPONIBILE DA SUBITO.
C.E. E IPE 192,54 KWH/MQA
| Riferimento | EK-123588253 |
|---|---|
| Superficie | 480 m² |
| Locali | 6 + (2 cucine, 5 camere, 2 soggiorni) + 2 bagni |
| Box e posto auto | Due autorimesse |
| Piano | Su più livelli |
| Disponibilità | Disponibile da subito |
| Tipo proprietà | Intera proprietà, classe immobile media |
| Informazioni catastali | Categoria A/3 € 426,08 |
| Anno di costruzione | 1976 |
| Stato | Buono/Abitabile e parzialmente da ristrutturare |
| Riscaldamento | Autonomo, a radiatori, alimentato a GPL |
| Condizionatore | Assente |
| Classe energetica | E |
| Indice di prestazione energetica globale | 192,54 Kwh/mqa |
| Spese condominiali | € 0/mese |
